QONITA 40
DEPOK TIMUR
QONITA 40
775.000.000 Allin
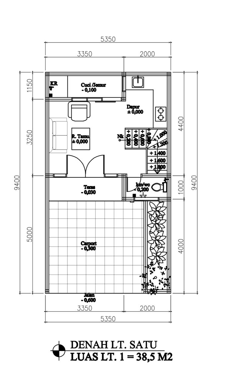
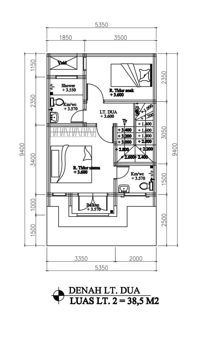
2kamar tidur
3kamar mandi
free segala biaya biaya
free Ac
Free kanopi
Free mesin pompa air
free torrent (penyimpanan air)
Hanya boking fee 4jt anda dapat memiliki rumah sendiri
lokasi strategis dekat dengan akses tol, angkot, stasiun kereta dekat pusat perbelanjaan modern atau tradisional, rumah peribadatan, sekolah TK SD SMP dll
booking fee kembali 100% jika tidak di ACC bank
simulasi KPR tersebut adalah simulasi dari bank BTN dan dapat melakukan proses di bank BSI atau yang lain dengan simulasi yang berbeda
Informasi Kontak
0852-1739-6309 (CEO (Chief Executive Officer ))






